Casarabonela

Te koop Finca - Cortijo Costa Del Sol Casarabonela € 795.000,-

Ref.no: RSOR5196559
Price: € 795.000,-

1-7980e48d732b6fc85c14b43b94d2aa54.jpg

Te koop Finca - Cortijo Costa Del Sol Casarabonela € 795.000,-

Bedrooms7
Salles de bains5
Superficie du terrain362m²
Poolyes
Gardenyes
Parkingno
Built year2005
Instelling: Land, dicht bij de stad
Orientatie: Oost, Zuid-West
Staat: goed
Zwembad: privé
Klimaatregeling: airconditioning, centrale verwarming, open haard
Uitzicht: Bergen, Land, Panoramisch, Tuin
Caractéristiques : Armoires encastrées, Terrasse privée, Appartement d'invités, Débarras, Salle de bains attenante, Double vitrage
Meubels: optioneel
Keuken: volledig ingericht
Tuin: privé
Parkeren: privé
Nutsvoorzieningen: elektriciteit, drinkbaar water, gas, fotovoltaïsche zonnepanelen
Categorie: Wederverkoop
Ref.no: RSOR5196559
Price: € 795.000,-

Plus d'information ›››
Te koop Finca - Cortijo Costa Del Sol Casarabonela € 795.000,-

Annonce exclusive!
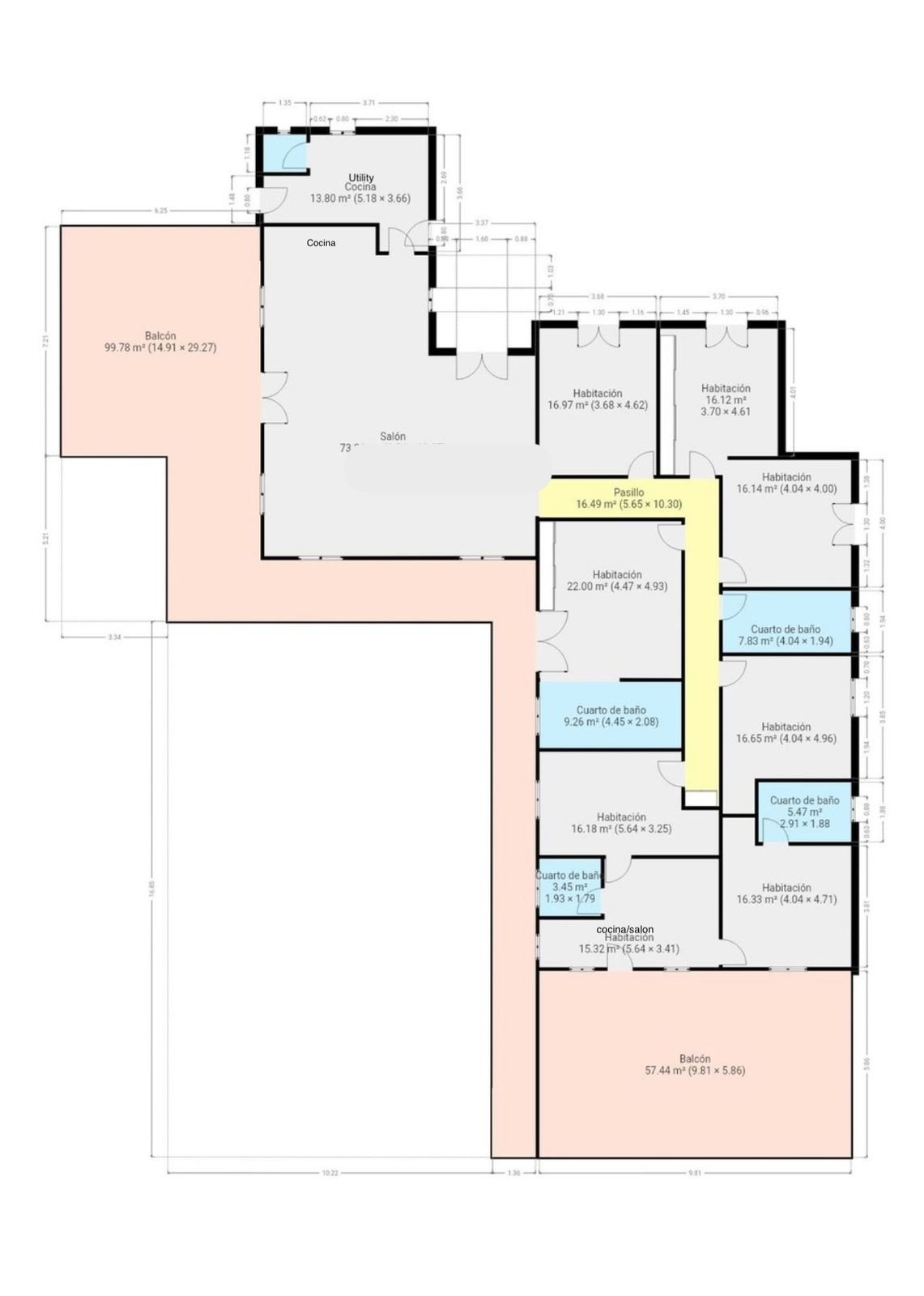
Cette maison de campagne spacieuse et confortable (Cortijo) est idéale pour une grande famille, comme maison de vacances de luxe ou comme investissement locatif avec un important potentiel locatif grâce à son appartement d'amis indépendant. En excellent état, la propriété allie charme authentique et confort moderne.
L'agencement ouvert époustouflant du salon, de la salle à manger et de la cuisine constitue le cœur de la maison.
Hauts plafonds et grandes fenêtres : ces éléments architecturaux offrent un maximum de lumière naturelle tout au long de la journée et accentuent la sensation d'espace. Profitez de la chaleur de la cheminée lors des soirées plus fraîches, entourée de charmants sols en terre cuite et de la belle porte d'entrée en bois espagnol qui souligne l'atmosphère champêtre.
La cuisine entièrement équipée s'intègre harmonieusement au séjour, idéal pour les moments conviviaux et les réceptions. Derrière la cuisine se trouvent une grande cuisine/buanderie et des toilettes invités.
Depuis le salon, vous accédez à la terrasse principale couverte. Ce sera votre endroit préféré pour dîner et profiter de la vue spectaculaire sur les montagnes vallonnées.
Une petite marche mène à un couloir menant à l'espace nuit principal. Ces chambres sont spacieuses et équipées de placards intégrés pratiques, offrant un espace de rangement optimal.
La particularité de cette finca est sa maison d'amis indépendante et entièrement verrouillable. Accessible par la maison principale, elle dispose également de sa propre entrée indépendante, ce qui en fait un lieu idéal pour la location ou comme domaine privé pour les invités.
Cet appartement comprend :
* 2 chambres spacieuses, chacune avec une salle de bain attenante.
* cuisine/séjour
* Une grande terrasse privée avec des vues fantastiques.
Cette location d'hôtes offre une excellente opportunité de générer des revenus complémentaires grâce à la location de vacances (B&B/Maison de vacances).
Licencia de Primera Ocupación (LPO) en place.

La propriété est équipée de tout le confort moderne :
Climatisation et chauffage central.
Connecté au réseau électrique et équipé de panneaux solaires.
Raccordé au réseau public d'eau potable.
Bonne connexion Internet disponible.

Piscine et terrasse privées : L'endroit idéal pour se rafraîchir pendant les chauds mois d'été, avec une vue imprenable sur la vallée.
Bar extérieur & espace BBQ : Situé au bord de la piscine, idéal pour organiser des fêtes, des barbecues et de longues soirées d'été.
Le jardin est planté d'oliviers matures et de divers arbres fruitiers.
Parking privé sur place.
La route d'accès est en grande partie pavée, seuls les 600 derniers mètres étant un chemin de terre bien entretenu.
À seulement 15 minutes en voiture des charmants villages d'Alozaina et Casarabonela.
L'aéroport international de Malaga se trouve à 45 minutes en voiture, ce qui vous permet de voyager rapidement et facilement vers et depuis votre base d'origine.

Finca - Cortijo, Casarabonela, Costa del Sol.
7 Chambres, 4.5 Salles de bains, Surface construite 362 m², Terrasse 150 m².
Cadre : Campagne, Proche Ville.
Orientation : Est, Sud Ouest.
Etat : Bon.
Piscine : Privée.
Climatisation : Air conditionné, Chauffage central, Cheminée.
Vues : Montagne, Campagne, Panoramique, Jardin.
Caractéristiques : Armoires encastrées, Terrasse privée, Appartement d'invités, Débarras, Salle de bains attenante, Double vitrage.
Mobilier : En option.
Cuisine : Entièrement équipée.
Jardin : Privé.
Parking : Privé.
Services publics : Électricité, Eau potable, Gaz, Panneaux solaires photovoltaïques.
Catégorie : Revente.

Alternatives

1-7980e48d732b6fc85c14b43b94d2aa54.jpg

Te koop Finca - Cortijo Costa Del Sol Antequera € 870.000,-

Price € 870.000,-
Plus d'information
1-7980e48d732b6fc85c14b43b94d2aa54.jpg

Te koop Finca - Cortijo Costa Del Sol Monda € 875.000,-

Price € 875.000,-
Plus d'information
1-7980e48d732b6fc85c14b43b94d2aa54.jpg

Te koop Finca - Cortijo Costa Del Sol Gaucín € 850.000,-

Price € 850.000,-
Plus d'information
1-7980e48d732b6fc85c14b43b94d2aa54.jpg

Te koop Finca - Cortijo Costa Del Sol Casares € 850.000,-

Price € 850.000,-
Plus d'information
Disclaimer | Links
Casadelmar %lng_cookie_notice% %lng_close%
x