Mijas Costa

Te koop Residential Plot Costa Del Sol Mijas Costa € 220.000,-

Ref.no: RSOR5255542
Price: € 220.000,-

1-7980e48d732b6fc85c14b43b94d2aa54.jpg

Te koop Residential Plot Costa Del Sol Mijas Costa € 220.000,-

Poolno
Gardenyes
Parkingno
Instelling: Frontline Golf, dicht bij Golf, dicht bij de stad, verstedelijking
Orientatie: Zuid
Uitzicht: zee, bergen, golf
Beveiliging: Gated Complex
Hulpprogramma's: elektriciteit, drinkwater
Categorie: Golf
Ref.no: RSOR5255542
Price: € 220.000,-

Plus d'information ›››
Te koop Residential Plot Costa Del Sol Mijas Costa € 220.000,-

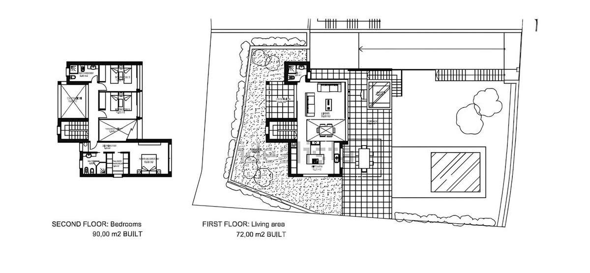
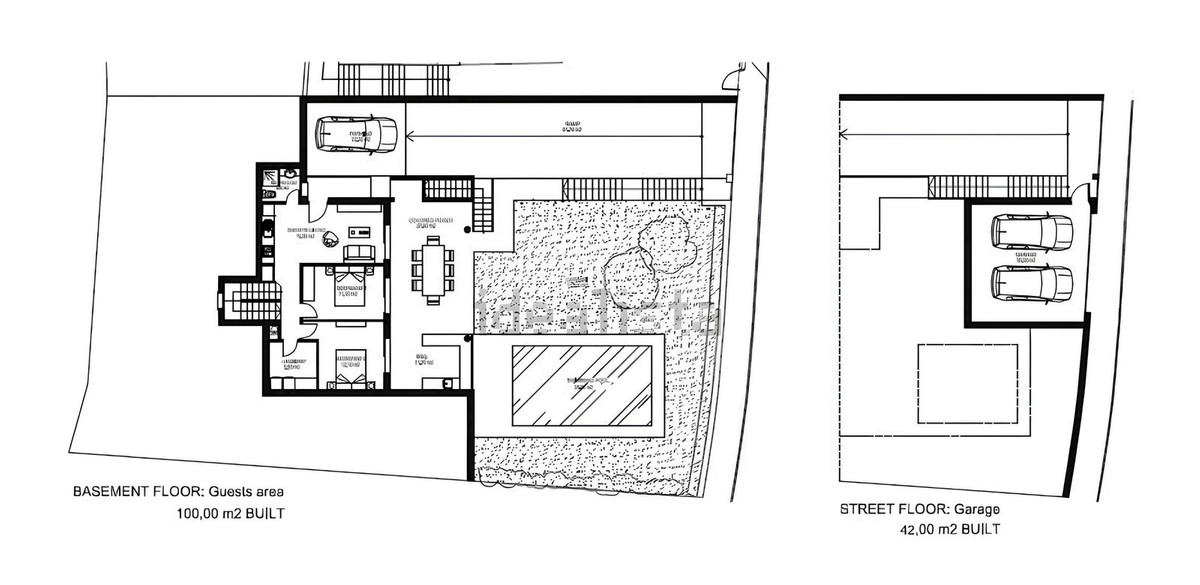
Terrain Urbain à Vendre à Cerrado del Águila – Mijas

Terrain urbain de 600 m² avec un coefficient d'occupation des sols de 0,24, permettant une surface constructible maximale de 144 m². Un permis de construire est disponible, ainsi qu'un projet de construction datant de 2005, qui doit être révisé et mis à jour conformément à la réglementation en vigueur.

Orientée plein sud avec vue panoramique sur Fuengirola, Mijas et la mer, cette propriété bénéficie d'une luminosité naturelle optimale tout au long de la journée. Idéale pour une maison individuelle avec jardin, piscine et garage.

Située à proximité du golf de Cerrado del Águila, dans un cadre paisible en pleine nature, à seulement 5 km du centre de Fuengirola et à deux pas du nouveau Gran Parque de la Costa del Sol.

Nos honoraires sont inclus dans le prix de vente. Ce prix ne comprend pas les frais liés à l'acquisition, tels que les frais de notaire, d'enregistrement et les taxes de mutation applicables (ITP, TVA, AJD).

Alternatives

1-7980e48d732b6fc85c14b43b94d2aa54.jpg

Te koop Residential Plot Costa Del Sol Mijas € 200.000,-

Price € 200.000,-
Plus d'information
1-7980e48d732b6fc85c14b43b94d2aa54.jpg

Te koop Residential Plot Costa Del Sol Manilva € 229.900,-

Price € 229.900,-
Plus d'information
1-7980e48d732b6fc85c14b43b94d2aa54.jpg

Te koop Residential Plot Costa Del Sol Fuengirola € 216.000,-

Price € 216.000,-
Plus d'information
1-7980e48d732b6fc85c14b43b94d2aa54.jpg

Te koop Residential Plot Costa Del Sol Estepona € 207.000,-

Price € 207.000,-
Plus d'information
Disclaimer | Links
Casadelmar %lng_cookie_notice% %lng_close%
x