Sotogrande

Te koop Grond Costa Del Sol Sotogrande € 800.000,-

Ref.no: RSOR5315077
Price: € 800.000,-

1-7980e48d732b6fc85c14b43b94d2aa54.jpg

Te koop Grond Costa Del Sol Sotogrande € 800.000,-

Superficie du terrain3315m²
Living area1000m²
Poolyes
Gardenyes
Parkingyes
Built year2026
Setting: Close To Golf, Close To Schools
Pool: Private
Climate Control: Air Conditioning, Central Heating
Views: Mountain, Golf, Panoramic, Garden
Features: Lift, Fitted Wardrobes, Near Transport, Private Terrace, Gym, Storage Room, Day Care
Garden: Private
Security: 24 Hour Security
Parking: Garage
Ref.no: RSOR5315077
Price: € 800.000,-

Plus d'information ›››
Te koop Grond Costa Del Sol Sotogrande € 800.000,-

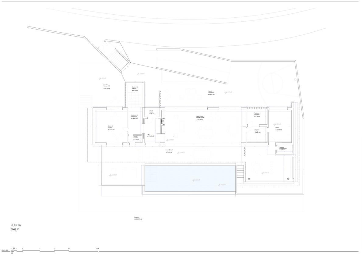
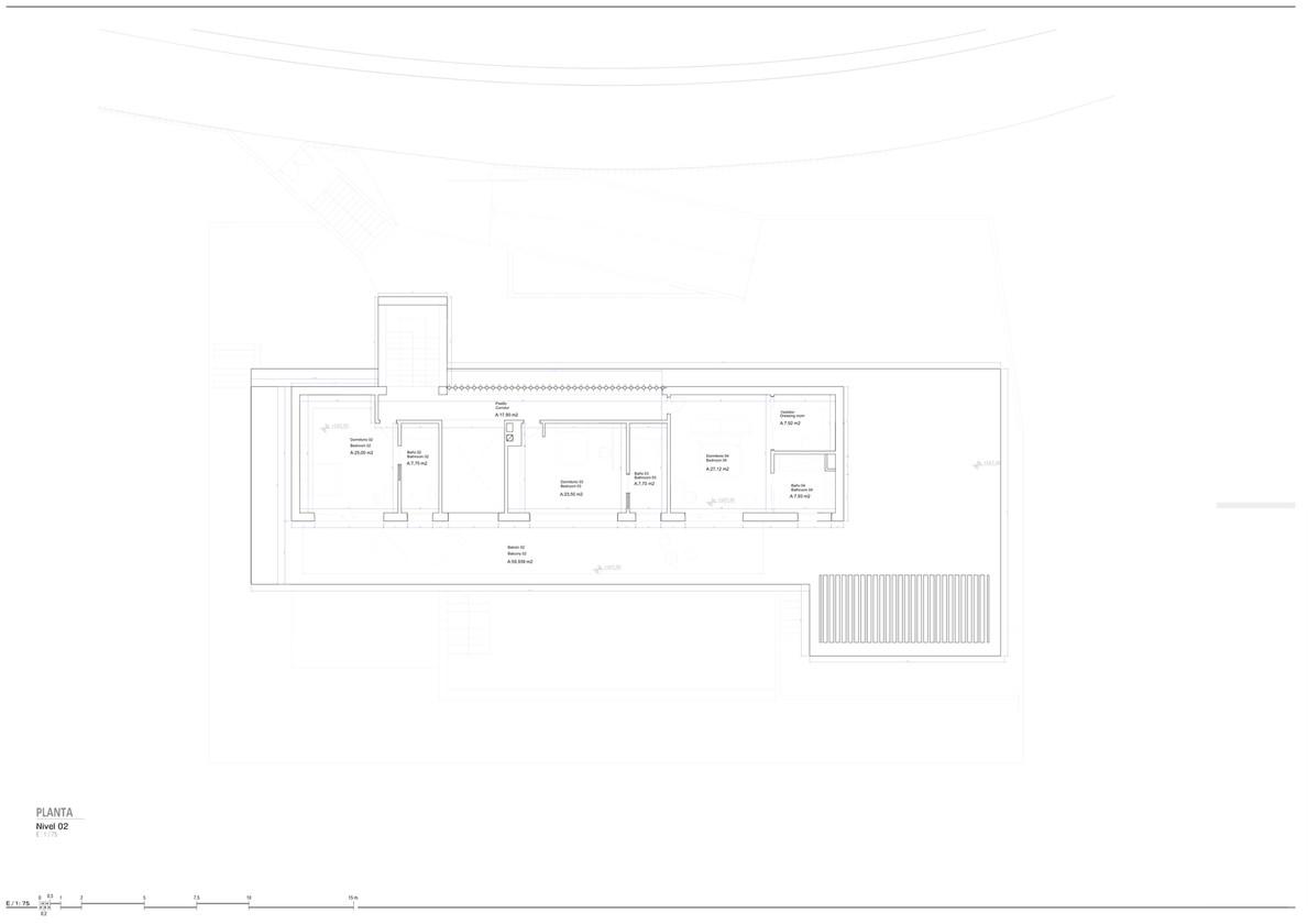
Elevated plot with uninterrupted golf and lake views in Sotogrande Alto.
Located in the Almenara area of Sotogrande Alto, just steps from SO Sotogrande and within close proximity to the Sotogrande International School, this 3,315 m² plot enjoys a privileged south west orientation and open front views over the Alto Club golf course and its lake.
The plot is elevated, ensuring privacy and uninterrupted views, and is surrounded by high quality completed villas, consolidating the residential character of the area. Its orientation allows for optimal light throughout the day and ideal positioning of terraces, pool and main living areas.
With 33 percent buildability, the plot allows for approximately 1,000 m² of construction, offering the possibility to create a substantial contemporary residence. The sale includes a fully developed architectural project by Casasola Arquitectos, known for refined modern design and strong integration between architecture and landscape.
The project has already been granted building licence, allowing immediate commencement of construction. All utilities are onsite and a complete landscaping project is included in the sale, providing clarity and efficiency from day one.
Ownership is ready to transfer, making this a streamlined acquisition for a buyer seeking a prime location in Sotogrande Alto with immediate development potential and no planning uncertainty.
*The images presented are for reference only and may vary from the final product.

Alternatives

1-7980e48d732b6fc85c14b43b94d2aa54.jpg

Te koop Grond Costa Del Sol Benahavís € 875.000,-

Price € 875.000,-
Plus d'information
1-7980e48d732b6fc85c14b43b94d2aa54.jpg

Te koop Grond Costa Del Sol Estepona € 850.000,-

Price € 850.000,-
Plus d'information
1-7980e48d732b6fc85c14b43b94d2aa54.jpg

Te koop Grond Costa Del Sol Ojén € 775.000,-

Price € 775.000,-
Plus d'information
1-7980e48d732b6fc85c14b43b94d2aa54.jpg

Te koop Residential Plot Costa Del Sol Sotogrande € 750.000,-

Price € 750.000,-
Plus d'information
Disclaimer | Links
Casadelmar %lng_cookie_notice% %lng_close%
x