San Pedro De Alcántara

Te koop Herenhuis Costa Del Sol San Pedro De Alcántara € 695.000,-

Ref.no: RSOR5357137
Price: € 695.000,-

1-7980e48d732b6fc85c14b43b94d2aa54.jpg

Te koop Herenhuis Costa Del Sol San Pedro De Alcántara € 695.000,-

Bedrooms5
Salles de bains3
Superficie du terrain350m²
Living area316m²
Poolno
Gardenyes
Parkingno
Instelling: dicht bij golf, dicht bij winkels, dicht bij stad, dicht bij scholen
Weergaven: Panoramisch, stedelijk
Functies: Nabij vervoer, privéterras, solarium
Ref.no: RSOR5357137
Price: € 695.000,-

Plus d'information ›››
Te koop Herenhuis Costa Del Sol San Pedro De Alcántara € 695.000,-

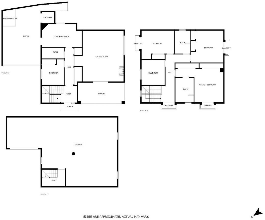
Nous vous présentons cette maison individuelle de 316 m² construite sur un terrain de 350 m². Le rez-de-chaussée comprend une chambre, une salle de bains, une cuisine entièrement équipée en bois et marbre, un grand salon avec cheminée et deux pièces, avec accès au porche et au jardin de devant. À l'étage se trouvent quatre chambres et deux salles de bains. La spacieuse chambre principale dispose d'une salle de bains attenante et de deux placards intégrés avec portes en bois massif. Enfin, au sous-sol se trouvent un garage et 150 m² d'espace ouvert pouvant être aménagé en salle de sport, salle de loisirs, cinéma, etc., voire en appartement avec entrée indépendante sur rue. Il convient de mentionner son espace extérieur avec jardin offrant la possibilité d'aménager une piscine et un espace barbecue lumineux entièrement équipé. À proximité des commerces et à quelques minutes seulement des terrains de golf et de San Pedro de Alcántara. Je serai ravi de vous accompagner lors de la visite que nous effectuerons, José Gaitan StrandProperties.

Alternatives

BOHACP1364_4240_V1_55FE.jpg

Te koop Herenhuis Costa Del Sol Estepona € 730.000,-

Price € 730.000,-
Plus d'information
BOHACP1401_4542_V1_16F9.jpg

Te koop Herenhuis Costa Del Sol La Cala Golf € 641.000,-

Price € 641.000,-
Plus d'information
BOHAAP4770_24773_V1_CA53.jpg

Te koop Herenhuis Costa Del Sol La Cala De Mijas € 753.000,-

Price € 753.000,-
Plus d'information
BOHAAP4845_26340_V1_8876.jpg

Te koop Herenhuis Costa Del Sol Fuengirola € 619.000,-

Price € 619.000,-
Plus d'information
Disclaimer | Links
Casadelmar %lng_cookie_notice% %lng_close%
x