Alora

Te koop Finca - Cortijo Costa Del Sol Alora € 699.000,-

Ref.no: RSOR5330668
Price: € 699.000,-

1-7980e48d732b6fc85c14b43b94d2aa54.jpg

Te koop Finca - Cortijo Costa Del Sol Alora € 699.000,-

Bedrooms4
Salles de bains4
Superficie du terrain17867m²
Living area285m²
Poolyes
Gardenyes
Parkingyes
Built year2025
Instelling: Land
Orientatie: Zuid
Staat: uitstekend
Zwembad: privé
Klimaatregeling: airconditioning
Uitzicht: Bergen, Land, Tuin
Caractéristiques : Terrasse couverte, Armoires encastrées, Terrasse privée, Appartement d'invités, Débarras, Double vitrage
Meubels: optioneel
Keuken: volledig ingericht
Tuin: privé
Parkeren: Garage, Open, meer dan één, privé
Hulpprogramma's: elektriciteit, drinkwater
Categorie: Wederverkoop
Ref.no: RSOR5330668
Price: € 699.000,-

Plus d'information ›››
Te koop Finca - Cortijo Costa Del Sol Alora € 699.000,-

Située dans une campagne vallonnée et paisible offrant une vue imprenable sur la vallée et le charmant village d'Álora, cette magnifique propriété rurale offre un mélange parfait de tranquillité, d'espace et de potentiel de revenus.

Située à seulement 10 minutes en voiture du village et de la gare, avec une liaison directe vers Málaga, la propriété bénéficie d'un cadre merveilleusement privé tout en étant idéalement située à proximité des commodités et des transports.

Le domaine s'étend sur près de 18 000 m² de terrain plat et exploitable, offrant un cadre idéal pour une grande variété de modes de vie ruraux. Que vous rêviez d'élever des chevaux, de cultiver la terre, d'aménager un jardin ou simplement de profiter de la liberté de la campagne, ce terrain offre des possibilités infinies.

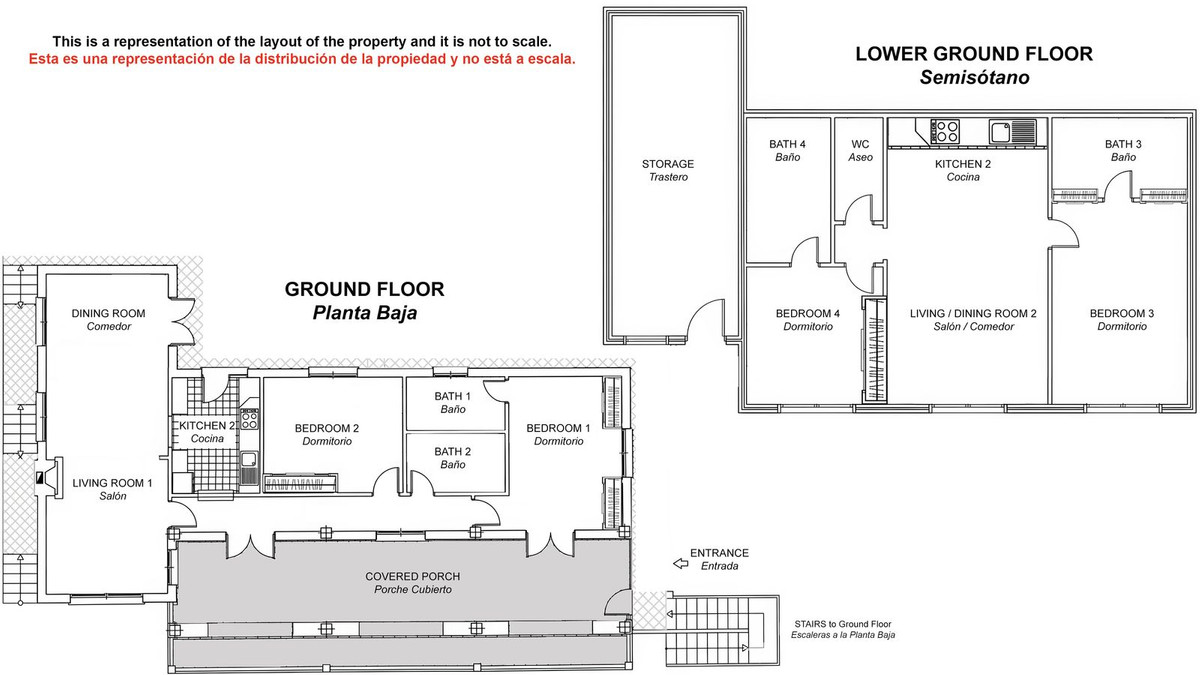
La maison elle-même a été conçue avec soin et est divisée en deux appartements indépendants, ce qui la rend idéale pour une famille élargie ou pour générer des revenus locatifs tout en préservant l'intimité.
L'appartement à l'étage comprend deux chambres confortables et deux salles de bains, ainsi qu'une cuisine entièrement équipée et un espace de vie lumineux avec coin repas et cheminée. De là, des portes s'ouvrent sur une véranda couverte, l'endroit idéal pour se détendre et admirer la vue panoramique imprenable sur la campagne environnante et jusqu'à Álora.

L'appartement du rez-de-chaussée offre un vaste espace de vie ouvert combinant salon, salle à manger et cuisine, ainsi que deux chambres – chacune avec sa propre salle de bains – et des toilettes invités. De grandes portes-fenêtres, depuis le salon et les chambres, donnent directement sur la terrasse de la piscine privée, créant ainsi une transition harmonieuse entre l'intérieur et l'extérieur.

À ce niveau se trouvent également un grand débarras, qui pourrait facilement être transformé en chambre supplémentaire avec salle de bains attenante, ainsi qu'un garage, ce qui ajoute encore plus de flexibilité à la propriété.

Construite selon des normes élevées, la maison bénéficie d'un approvisionnement en eau municipal, de l'électricité du réseau et, surtout, elle détient la licence de première occupation, offrant une tranquillité d'esprit tant pour un usage résidentiel que pour d'éventuelles locations.

Alliant des vues spectaculaires, un vaste terrain exploitable, un hébergement flexible et un excellent accès à Málaga, cette propriété représente une merveilleuse opportunité pour quiconque recherche un véritable style de vie à la campagne andalouse, avec l'avantage supplémentaire d'un potentiel locatif.

Alternatives

1-7980e48d732b6fc85c14b43b94d2aa54.jpg

Te koop Finca - Cortijo Costa Del Sol Estepona € 700.000,-

Price € 700.000,-
Plus d'information
1-7980e48d732b6fc85c14b43b94d2aa54.jpg

Te koop Finca - Cortijo Costa Del Sol La Cala Golf € 795.000,-

Price € 795.000,-
Plus d'information
1-7980e48d732b6fc85c14b43b94d2aa54.jpg

Te koop Finca - Cortijo Costa Del Sol Alora € 695.000,-

Price € 695.000,-
Plus d'information
1-7980e48d732b6fc85c14b43b94d2aa54.jpg

Te koop Finca - Cortijo Costa Del Sol Alora € 690.000,-

Price € 690.000,-
Plus d'information
Disclaimer | Links
Casadelmar %lng_cookie_notice% %lng_close%
x